Step into effortless living with this stylish, near-new three-bedroom townhouse, perfectly positioned in the heart of Sydenham.
This beautifully appointed home offers low-maintenance comfort with an impressive layout and quality finishes throughout.
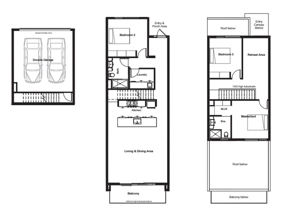
From the moment you enter, you’ll appreciate the natural light, soaring ceilings, and spacious design. The ground floor showcases a generous bedroom with built-in robes, a sleek central bathroom with floor-to-ceiling tiles and a double shower, and a large laundry. At the heart of the home is the expansive open-plan kitchen, meals, and living area — the perfect place to cook, relax, and entertain.
The chef’s kitchen is a standout, featuring:
• Stone benchtops & large breakfast bar
• 90cm oven with 5-burner gas cooktop
• Stainless steel appliances
• Ample storage and bench space
Step out onto your private balcony, ideal for weekend BBQs or quiet evenings with family and friends.
Upstairs, you'll find two additional spacious bedrooms, including a master suite with walk-in robe and full ensuite, plus a second living zone perfect as a kids’ retreat, media room, or quiet study space.
Additional highlights include:
• Heating and cooling throughout
• Security alarm system
• Oversized double garage with internal access
• Easy-care landscaped block
All this, just moments from Watergardens Shopping Centre, Watergardens Train Station, local schools, the swimming centre, and with easy access to the Melton Highway and Calder Freeway.
Don't miss this rare opportunity to secure a stylish, move-in-ready townhouse in one of Sydenham’s most convenient locations.
- Air Conditioning
- Balcony
- Built-in Wardrobes
- Dishwasher
- Intercom
- Study
























