Positioned in a quiet, family-friendly pocket of Point Cook, this beautifully presented home offers the perfect blend of modern comfort, smart energy efficiency, and everyday convenience.
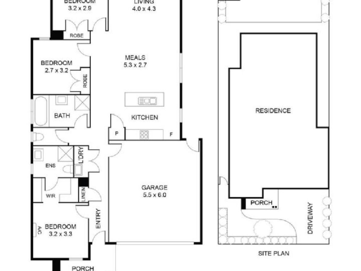
Designed with families in mind, the home features three generously sized bedrooms. The spacious master retreat includes a walk-in robe and private ensuite, while the remaining two bedrooms are fitted with built-in robes and serviced by a sleek central bathroom.
The light-filled open-plan living and dining zone forms the heart of the home, seamlessly connecting to a contemporary hostess kitchen complete with stainless steel appliances, ample storage, and quality finishes—perfect for both daily living and entertaining guests.
Comfort is truly next level, with air conditioning and heating installed in every bedroom as well as the main living area, ensuring year-round climate control tailored to every member of the household.
Adding outstanding value is the solar panel system, significantly reducing electricity costs and offering an energy-efficient lifestyle with lower utility bills—an increasingly rare and highly desirable feature for renters.
Step outside to a low-maintenance backyard ideal for relaxing, entertaining, or enjoying time outdoors without the upkeep.
Families will appreciate the sought-after school zoning for Homestead Senior Secondary College and Saltwater P-9 College, along with nearby childcare centres, parks, shopping facilities, and public transport options.
Offering space, style, comfort, and cost-saving efficiency, this home presents an exceptional rental opportunity in a thriving location.
Inspect today and secure a home that delivers both lifestyle and savings.
- Air Conditioning
- Remote Garage
- Secure Parking
- Dishwasher
- Solar Panels
























